













ДОМ ИЗ БРУСА ДВУХЭТАЖНЫЙ (01)
2400000 ₽
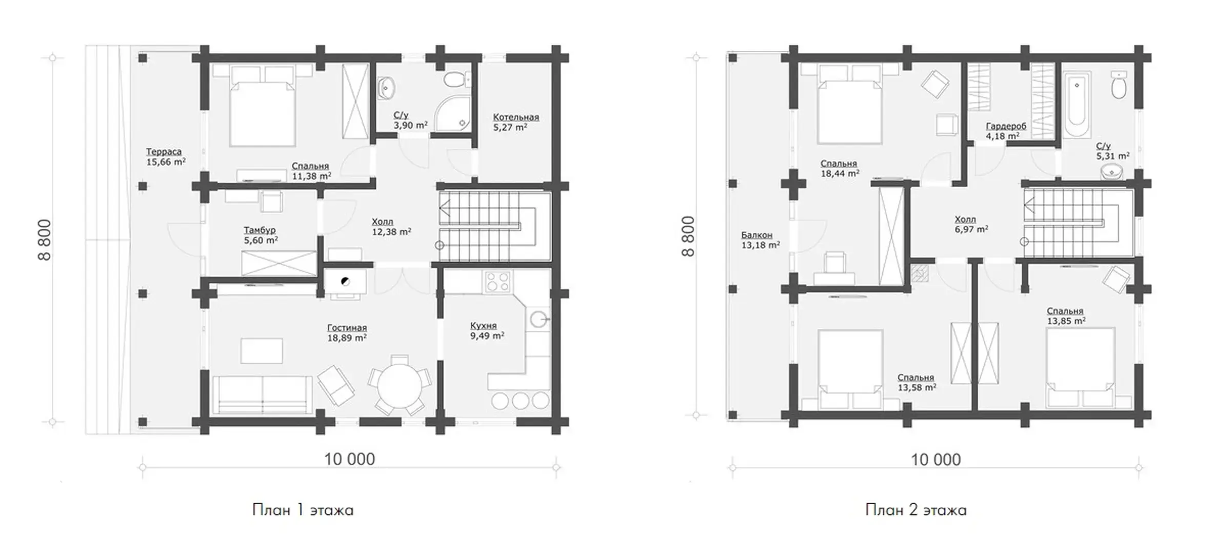
10х9 158 м.кв. Первый этап фундамент, сруб, крыша. Материал Цена Брус профилированный естественной влажности 2 400 000 руб. Брус профилированный сухой монолит 3 600 000 руб. Брус профилированный клеёный 5 580 000 руб.