Мы предлагаем
Мы производим
Услуги
Пиломатериалы
Наши мегастройки
Наши работы
Контакты
Адрес
Карта
+7(903)695-05-97
Написать
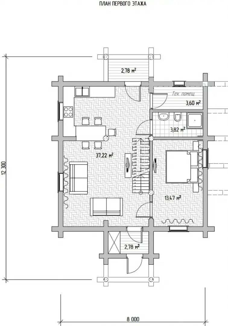
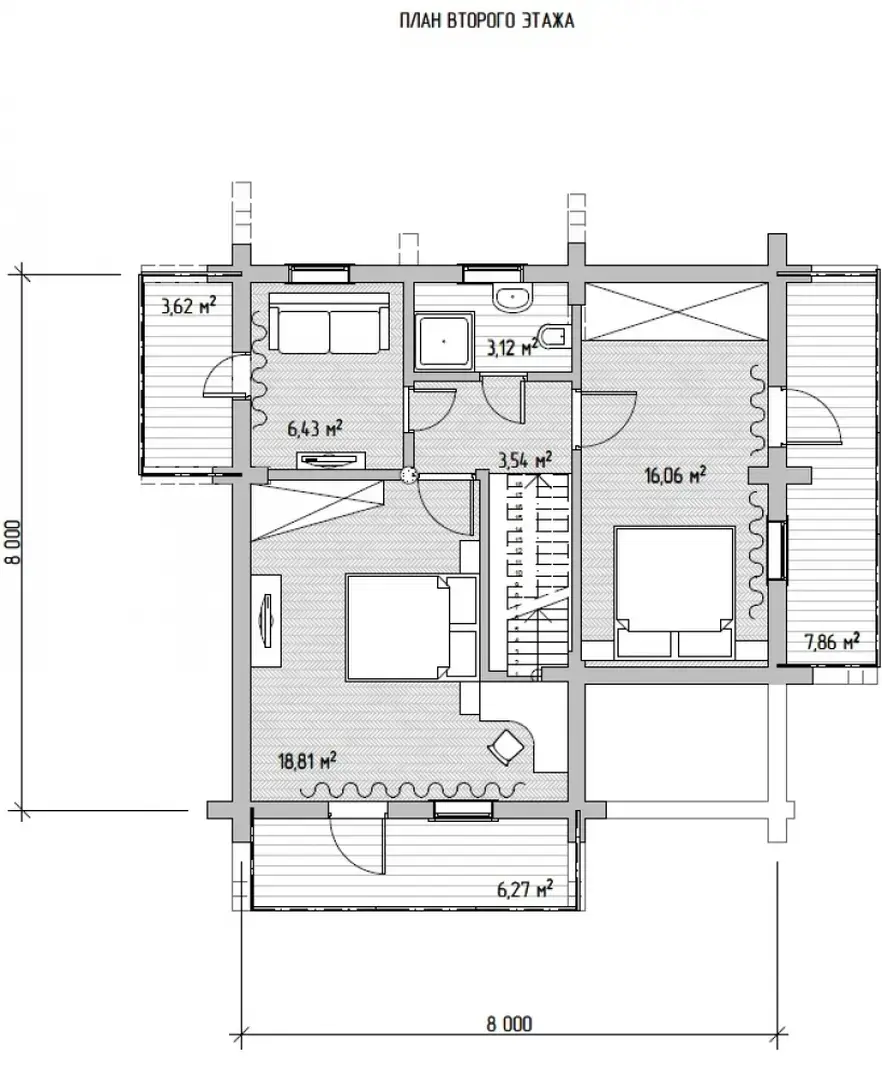
ДОМ ИЗ БРЕВНА ДВУХЭТАЖНЫЙ (06)
3840000 ₽
8х12 130 м.кв. Первый этап фундамент, сруб, крыша.
Заказать
8х12 130 м.кв. Первый этап фундамент, сруб, крыша.
Сделано на Конструкторе сайтов Рег.ру