Мы предлагаем
Мы производим
Услуги
Пиломатериалы
Наши мегастройки
Наши работы
Контакты
Адрес
Карта
+7(903)695-05-97
Написать
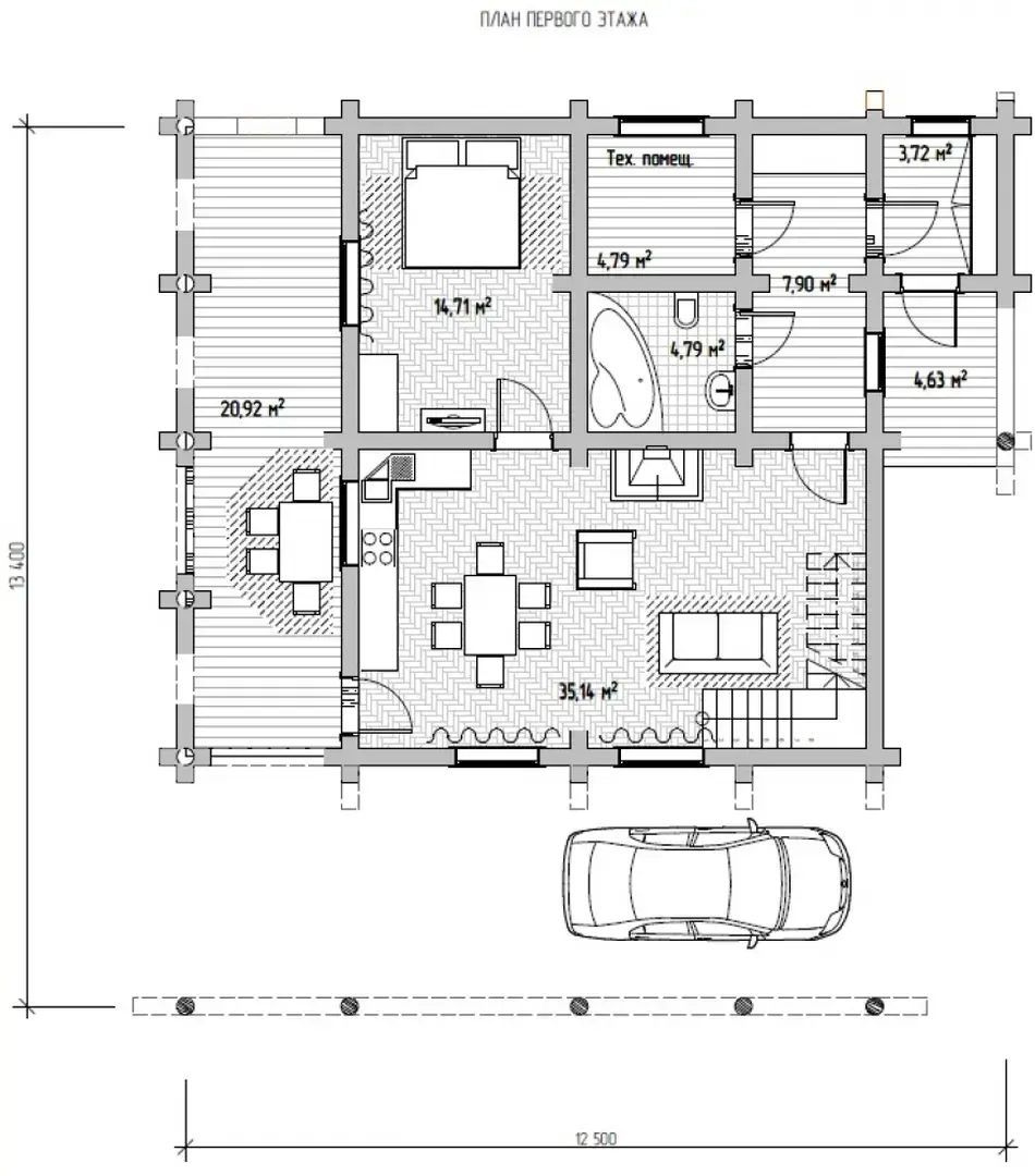
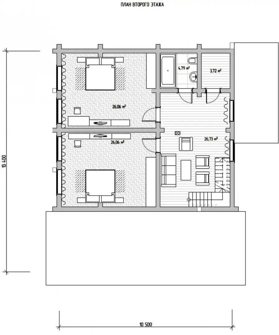
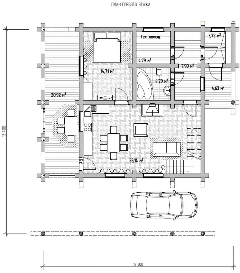
ДОМ ИЗ БРЕВНА ДВУХЭТАЖНЫЙ (02)
52062400 ₽
12х13 184 м.кв. Первый этап фундамент, сруб, крыша.
Заказать
12х13 184 м.кв. Первый этап фундамент, сруб, крыша.
Сделано на Конструкторе сайтов Рег.ру